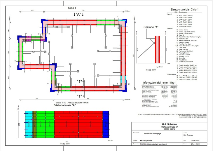
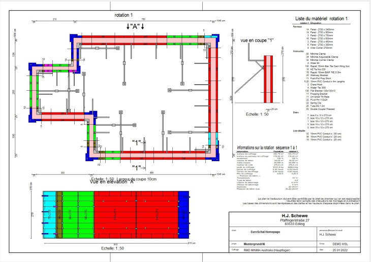
Altrad RMD KWIKFORM, MINIMA Australia

EUR 450,00

incl. Tax, excl. Shipping

Formwork bearing for EuroSchal. You must now add a formwork programme wall full version or update.