Zum Hauptinhalt springen

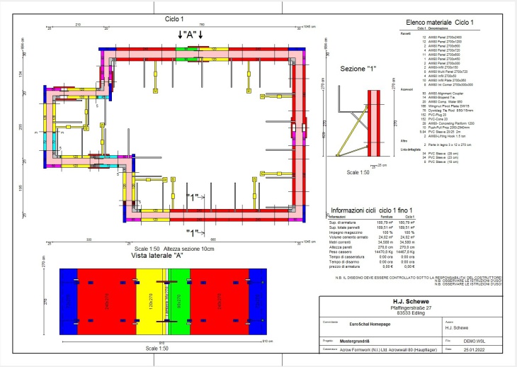
Acrow Formwork (N.I.) Ltd., Acrowwall 80 опалубка

EUR 450,00

без налога плюс доставка

Опалубочный подшипник для EuroSchal. Теперь вы должны добавить программу опалубки стен полная версия или обновление.