Paschal, Athlet Затвор

EUR 450,00

без налога плюс доставка

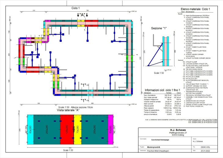
Опалубочный подшипник для EuroSchal. Теперь вы должны добавить программу опалубки стен полная версия или обновление.